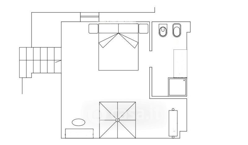
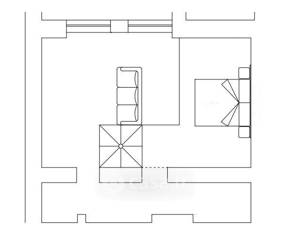
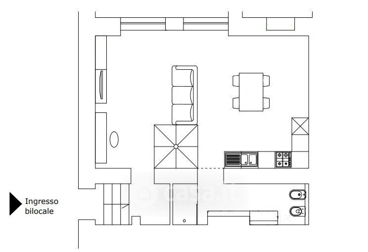
Loft in affitto Via Nerino 3, Milano
Salva
Casa.it
1/23
  • Street View
  • Map