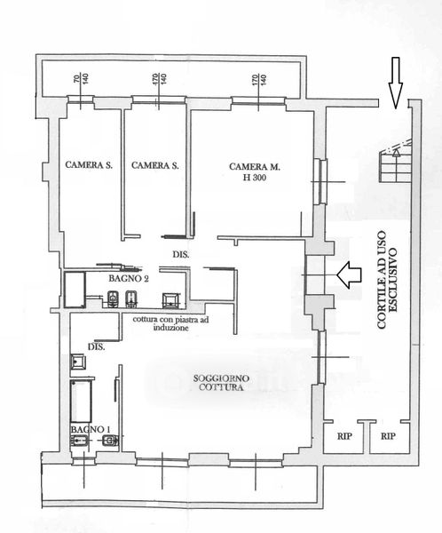
Loft in vendita Via Pessano 11, Milano
Salva
Casa.it
1/50
  • Street View
  • Map