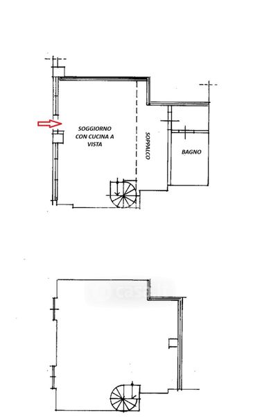
Loft in vendita Via Mario Pieri 2, Milano
Salva
Casa.it
1/26
  • Street View
  • Map