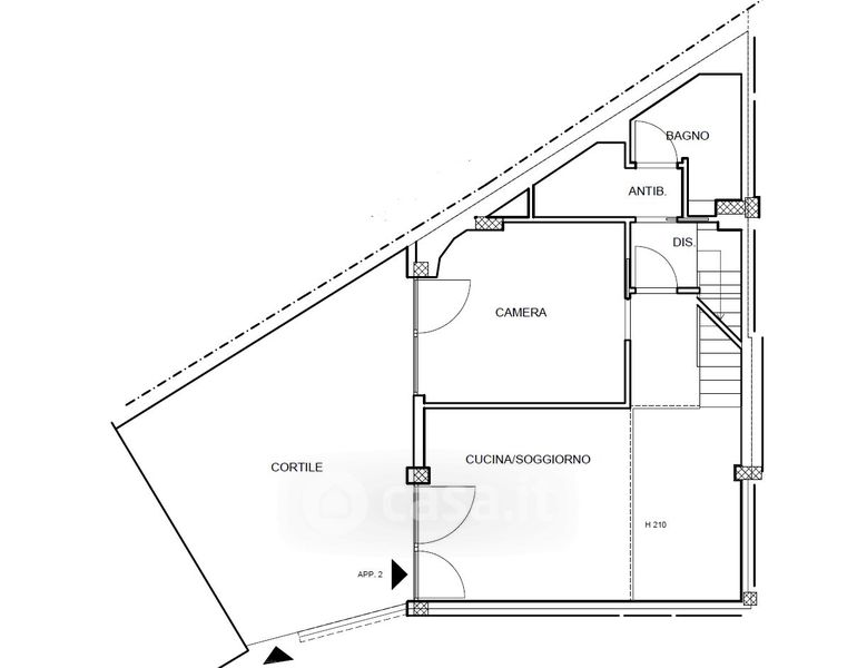
Loft in vendita Via Siusi 10, Milano
Salva
Casa.it
1/25
  • Street View
  • Map