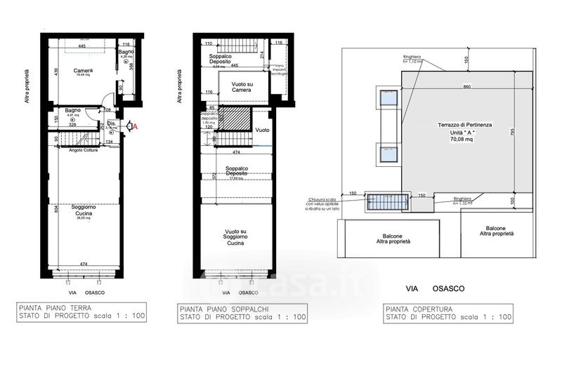
Loft in vendita Via Osasco 71, Torino
Salva
Casa.it
1/32
  • Street View
  • Map