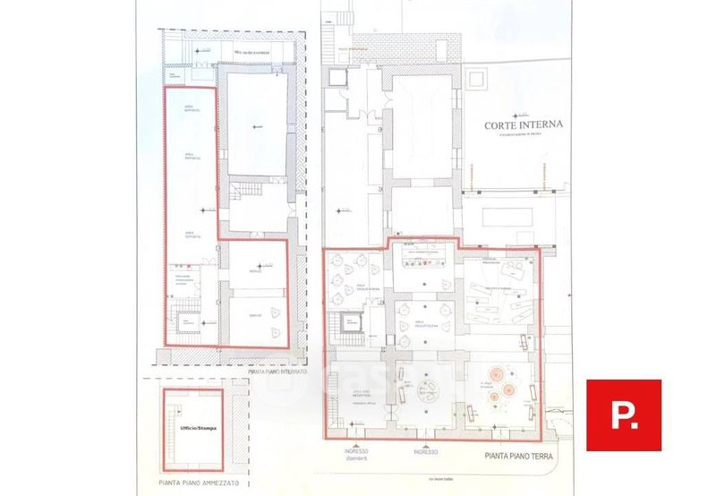
Negozio/Locale commerciale in affitto Via Cesare Battisti , Caserta
Salva
Casa.it
1/45
  • Street View
  • Map