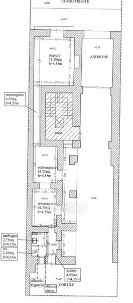
Negozio/Locale commerciale in affitto Corso Trieste 104, Caserta
Salva
Casa.it
1/20
  • Street View
  • Map