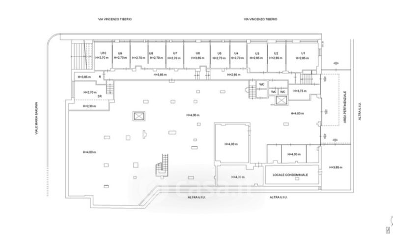
Negozio/Locale commerciale in vendita Viale Maria Bakunin 167, Napoli
Salva
Casa.it
1/17
  • Street View
  • Map