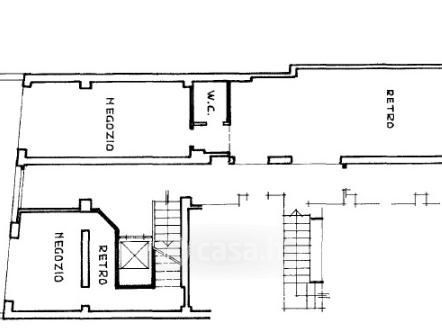
Negozio/Locale commerciale in vendita Via San Felice , Bologna
Salva
Casa.it
1/27
  • Street View
  • Map