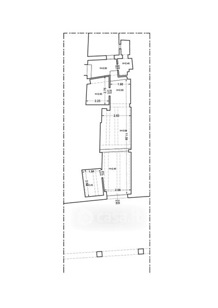
Negozio/Locale commerciale in vendita Via Sant'Isaia , Bologna
Salva
Casa.it
1/2
  • Street View
  • Map