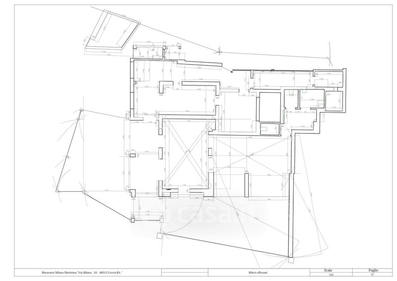
Negozio/Locale commerciale in vendita Viale Milano 12, Cervia
Salva
Casa.it
1/13
  • Street View
  • Map