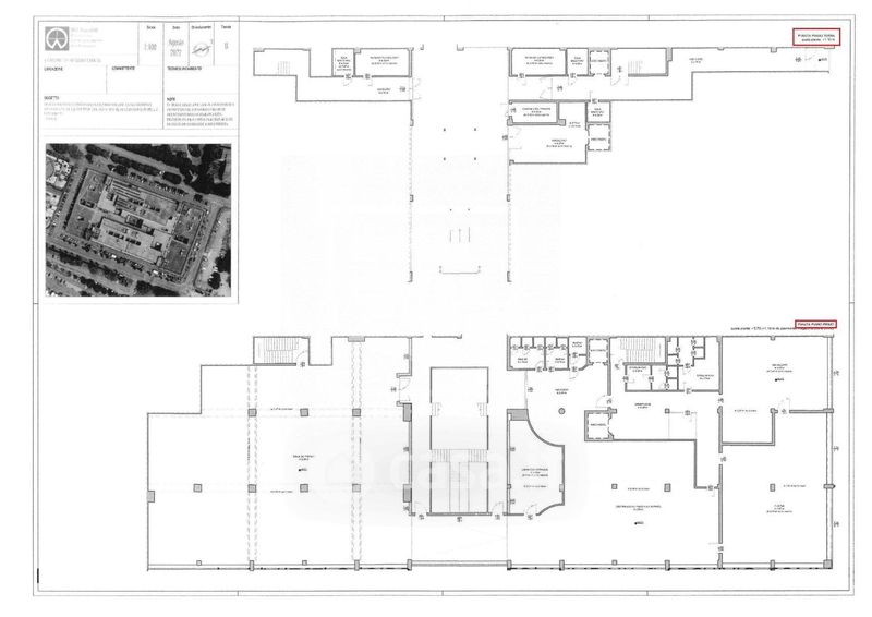
Negozio/Locale commerciale in vendita Via Guglielmo Oberdan 4, Reggio Emilia
Salva
Casa.it
1/21
  • Street View
  • Map