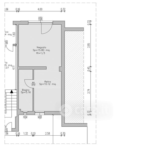
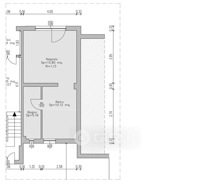
Negozio/Locale commerciale in vendita Viale Umberto I 26 A, Reggio Emilia
Salva
Casa.it
1/27
  • Street View
  • Map