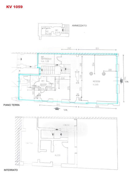
Negozio/Locale commerciale in affitto Piazza San Giovanni 2, Reggio Emilia
Salva
Casa.it
1/24
  • Street View
  • Map