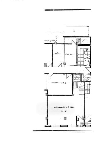
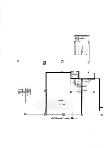
Negozio/Locale commerciale in vendita Via Policarpo Petrocchi , Roma
Salva
Casa.it
1/5
  • Street View
  • Map