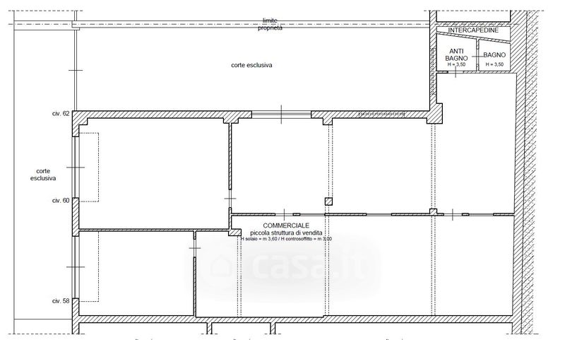
Negozio/Locale commerciale in vendita Vicolo degli Orti della Magliana 54 --62, Roma
Salva
Casa.it
1/11
  • Street View
  • Map