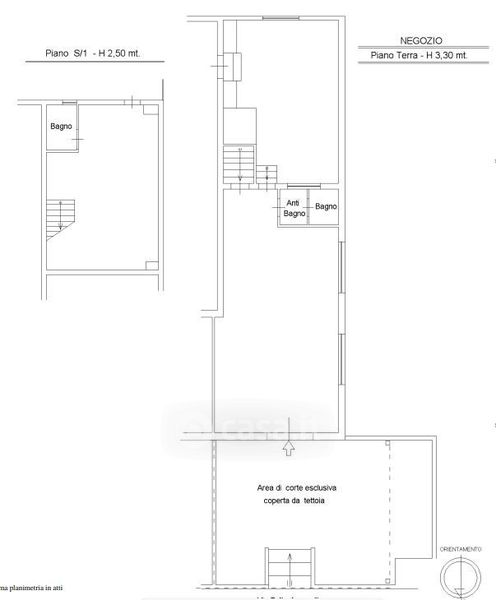
Negozio/Locale commerciale in vendita Via Tullio Ascarelli 137, Roma
Salva
Casa.it
1/14
  • Street View
  • Map