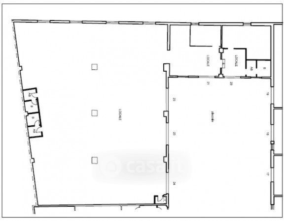
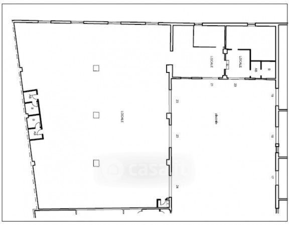
Negozio/Locale commerciale in affitto Piazza Galeria 7, Roma
Salva
Casa.it
1/25
  • Street View
  • Map