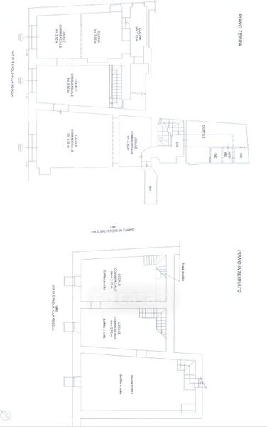
Negozio/Locale commerciale in vendita Via di San Paolo alla Regola , Roma
Salva
Casa.it
1/19
  • Street View
  • Map