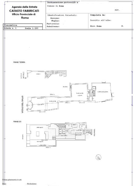
Negozio/Locale commerciale in vendita Vicolo del Gallo , Roma
Salva
Casa.it
1/20
  • Street View
  • Map