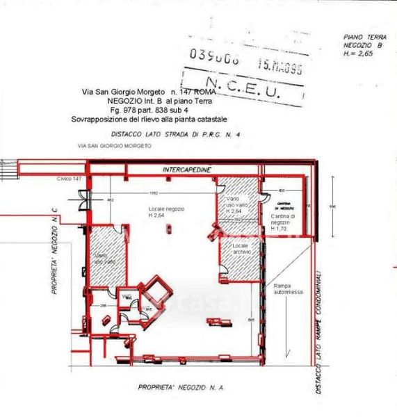
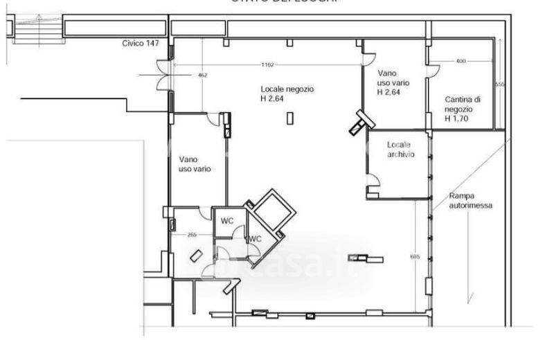
Negozio/Locale commerciale in vendita Via San Giorgio Morgeto 147, Roma
Salva
Casa.it
1/6
  • Street View
  • Map