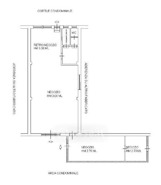
Negozio/Locale commerciale in vendita Via di Portonaccio , Roma
Salva
Casa.it
1/4
  • Street View
  • Map