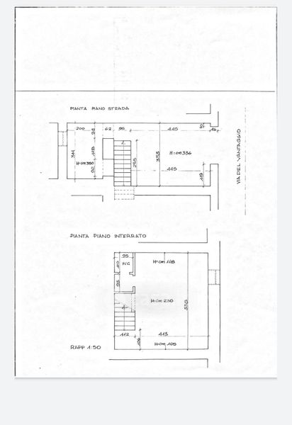
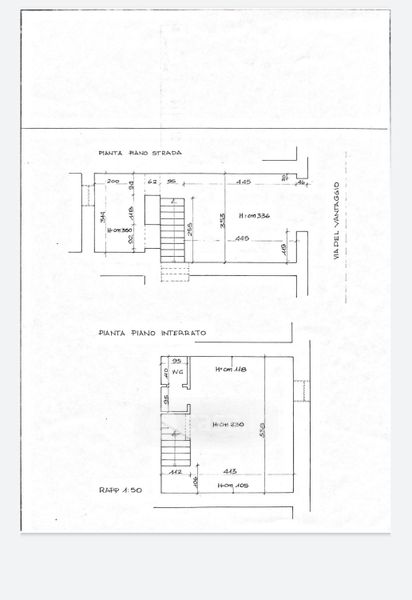
Negozio/Locale commerciale in affitto Via del Vantaggio 28, Roma
Salva
Casa.it
1/26
  • Street View
  • Map