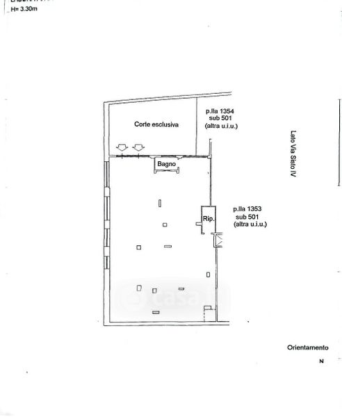
Negozio/Locale commerciale in vendita Via Sisto IV 237, Roma
Salva
Casa.it
1/13
  • Street View
  • Map