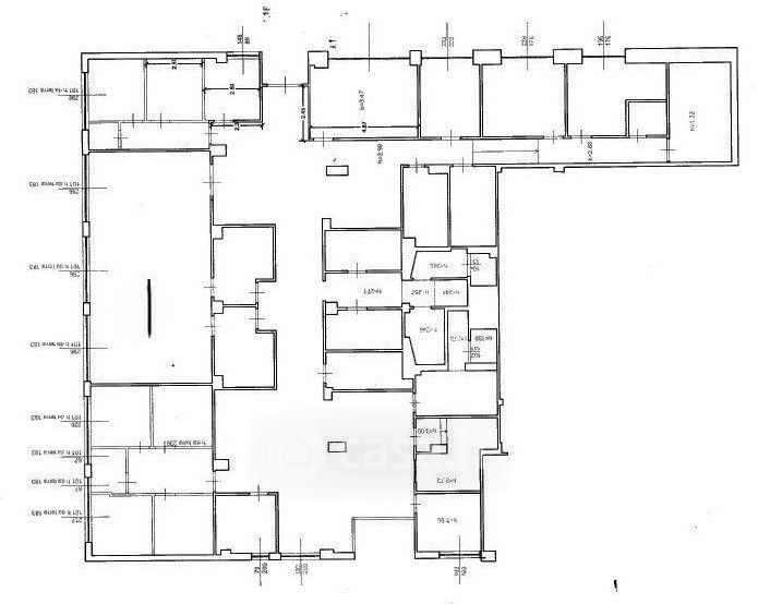
Negozio/Locale commerciale in affitto Via Nomentana 326, Roma
Salva
Casa.it
1/19
  • Street View
  • Map