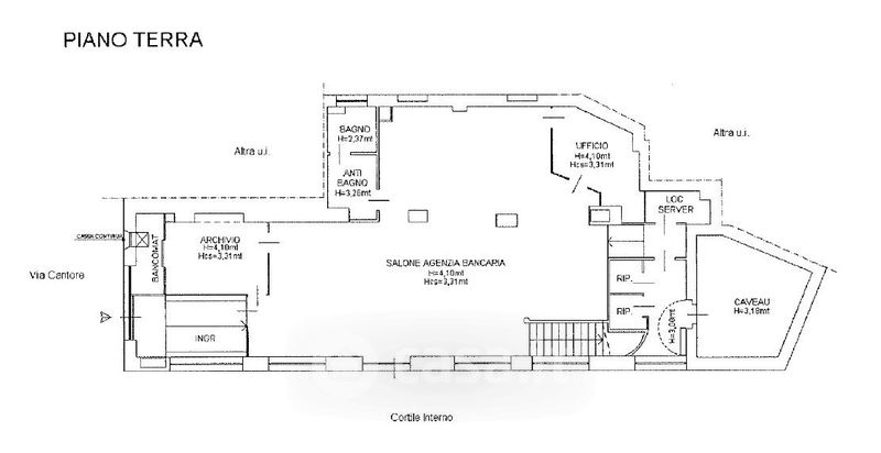
Negozio/Locale commerciale in vendita Via Antonio Cantore , Genova
Salva
Casa.it
1/32
  • Street View
  • Map