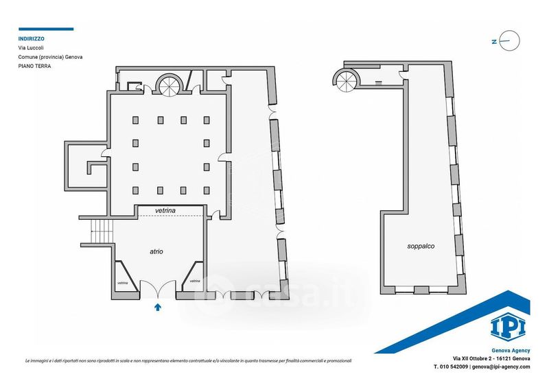
Negozio/Locale commerciale in affitto Via Luccoli , Genova
Salva
Casa.it
1/11
  • Street View
  • Map