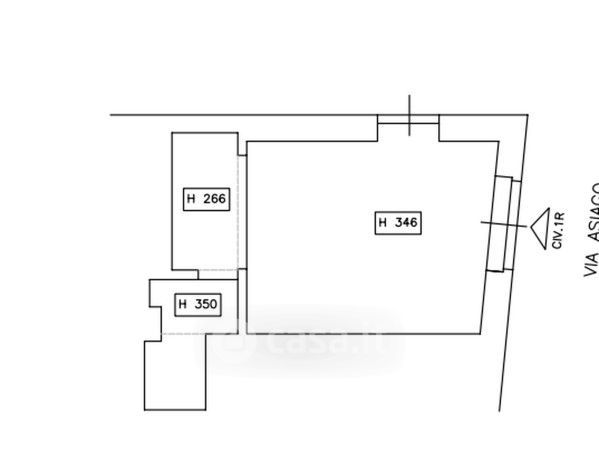
Negozio/Locale commerciale in vendita Via Asiago 1 R, Genova
Salva
Casa.it
1/12
  • Street View
  • Map