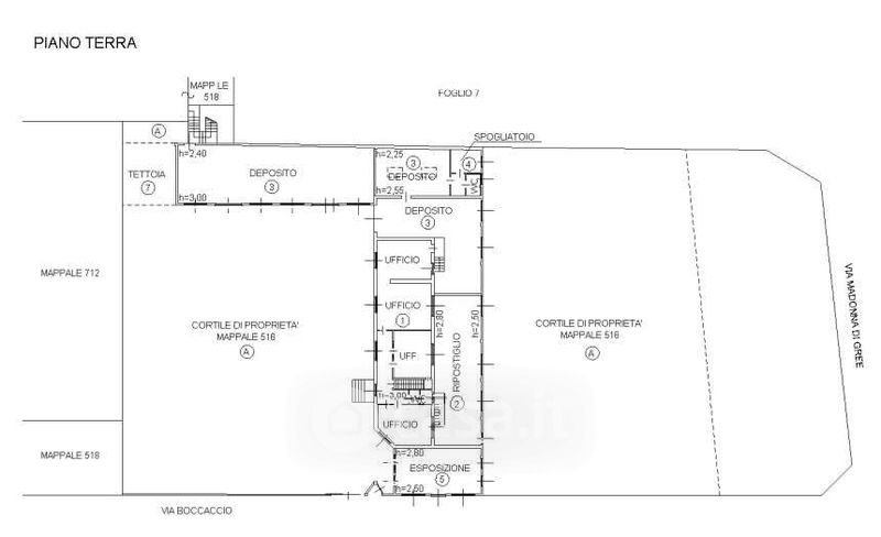
Negozio/Locale commerciale in vendita Viale Boccaccio , Busto Arsizio
Salva
Casa.it
1/15
  • Street View
  • Map