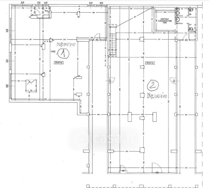
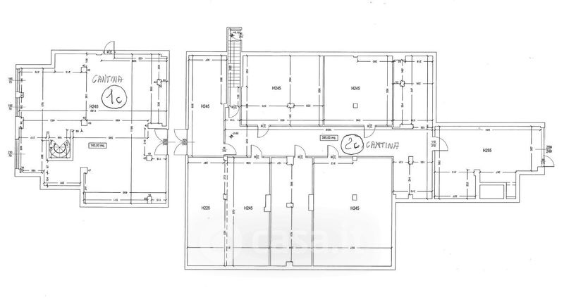
Negozio/Locale commerciale in vendita Via Resegone 88, Legnano
Salva
Casa.it
1/27
  • Street View
  • Map