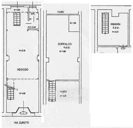
Negozio/Locale commerciale in vendita Via Gianfranco Zuretti 53, Milano
Salva
Casa.it
1/21
  • Street View
  • Map