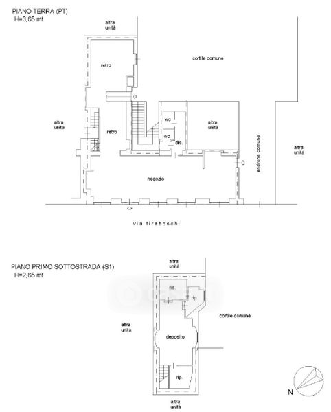
Negozio/Locale commerciale in vendita Via Gerolamo Tiraboschi , Milano
Salva
Casa.it
1/26
  • Street View
  • Map