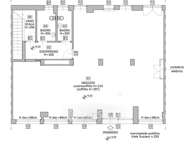
Negozio/Locale commerciale in affitto Viale Giovanni Suzzani 250, Milano
Salva
Casa.it
1/12
  • Street View
  • Map