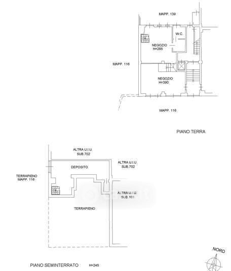
Negozio/Locale commerciale in vendita Via Barnaba Oriani 58, Milano
Salva
Casa.it
1/6
  • Street View
  • Map