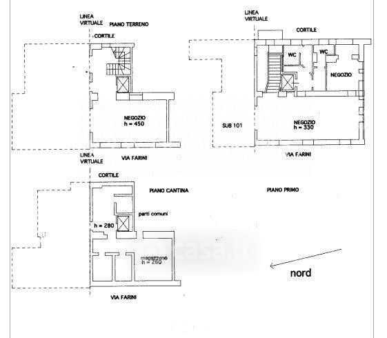
Negozio/Locale commerciale in vendita Via Carlo Farini , Milano
Salva
Casa.it
1/8
  • Street View
  • Map