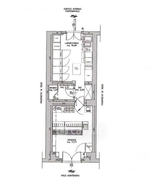
Negozio/Locale commerciale in affitto Viale Monte Nero , Milano
Salva
Casa.it
1/19
  • Street View
  • Map