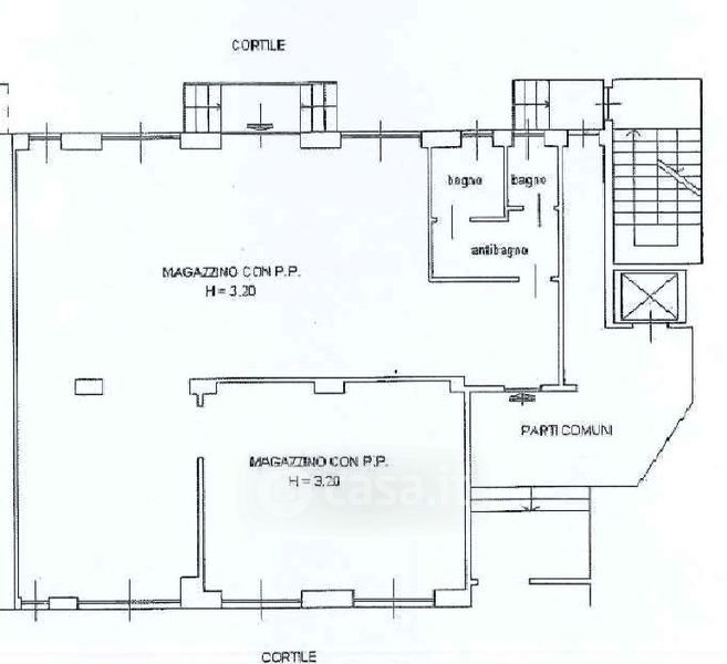
Negozio/Locale commerciale in affitto Via Aosta 13, Milano
Salva
Casa.it
1/20
  • Street View
  • Map