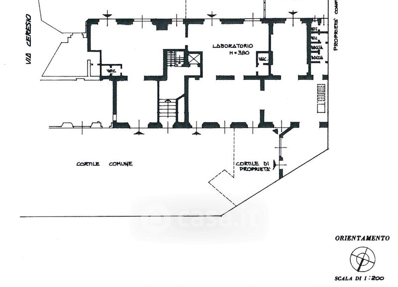
Negozio/Locale commerciale in affitto Via Ceresio 3, Milano
Salva
Casa.it
1/10
  • Street View
  • Map