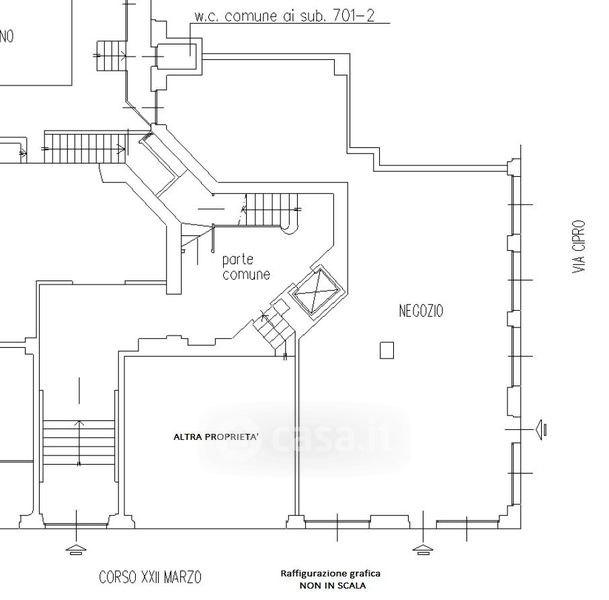
Negozio/Locale commerciale in vendita Corso Ventidue Marzo 48, Milano
Salva
Casa.it
1/12
  • Street View
  • Map