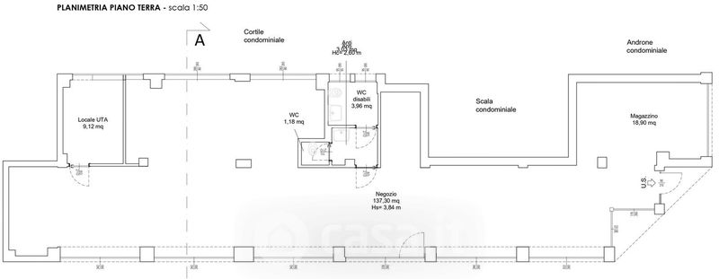
Negozio/Locale commerciale in affitto Via Padova , Milano
Salva
Casa.it
1/7
  • Street View
  • Map