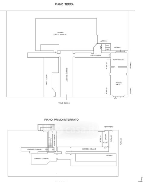
Negozio/Locale commerciale in vendita Viale Bligny 45, Milano
Salva
Casa.it
1/45
  • Street View
  • Map