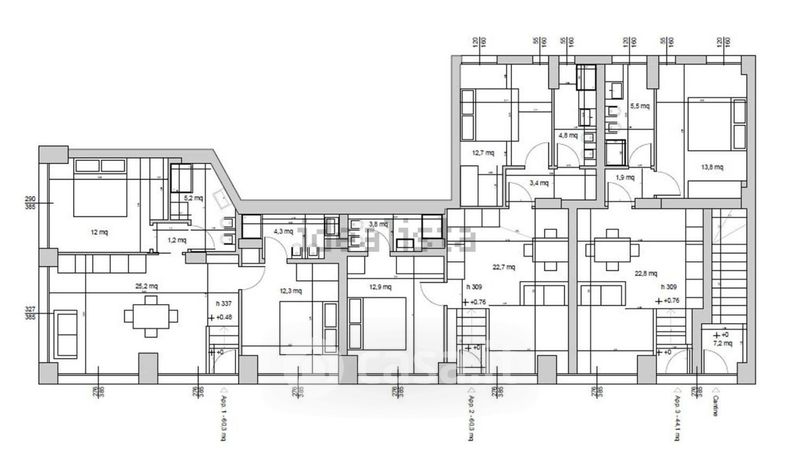
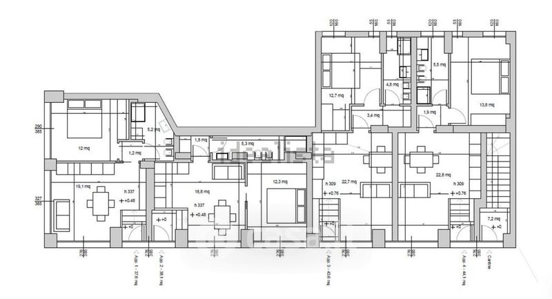
Negozio/Locale commerciale in vendita Via Vigilio Inama 27, Milano
Salva
Casa.it
1/21
  • Street View
  • Map