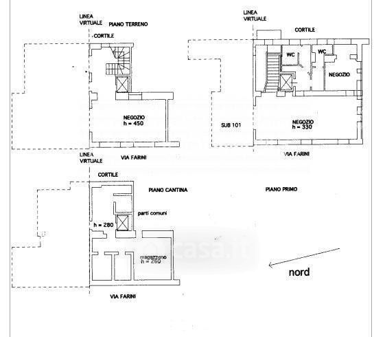
Negozio/Locale commerciale in affitto Via Carlo Farini , Milano
Salva
Casa.it
1/24
  • Street View
  • Map