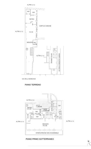
Negozio/Locale commerciale in affitto Via della Moscova , Milano
Salva
Casa.it
1/18
  • Street View
  • Map