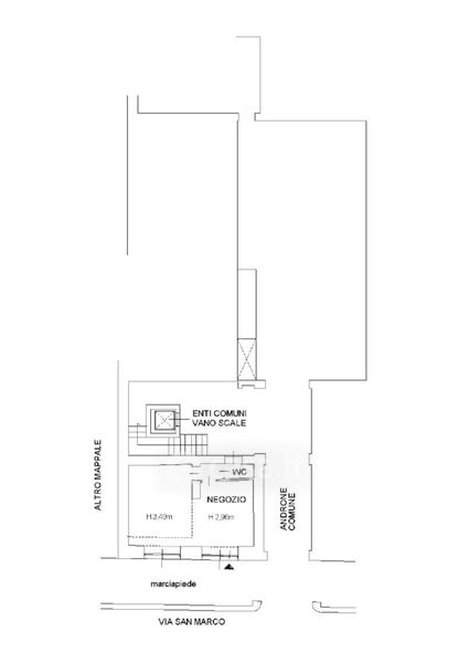
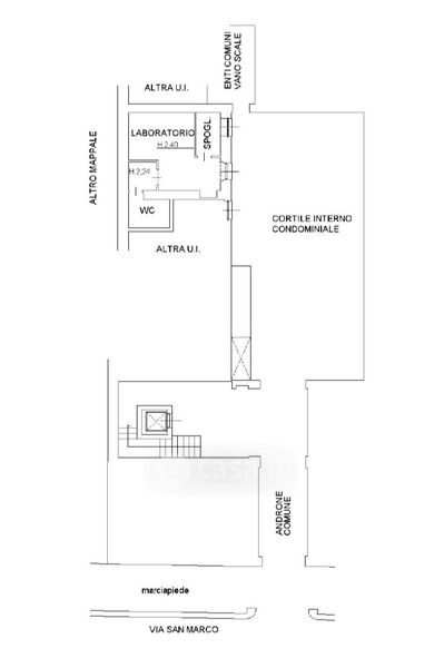
Negozio/Locale commerciale in vendita Via San Marco , Milano
Salva
Casa.it
1/22
  • Street View
  • Map