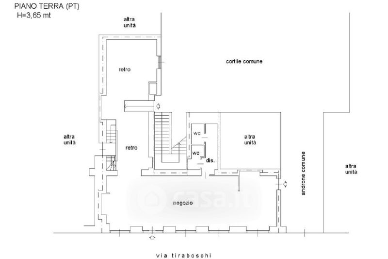
Negozio/Locale commerciale in affitto Via Gerolamo Tiraboschi 6, Milano
Salva
Casa.it
1/27
  • Street View
  • Map