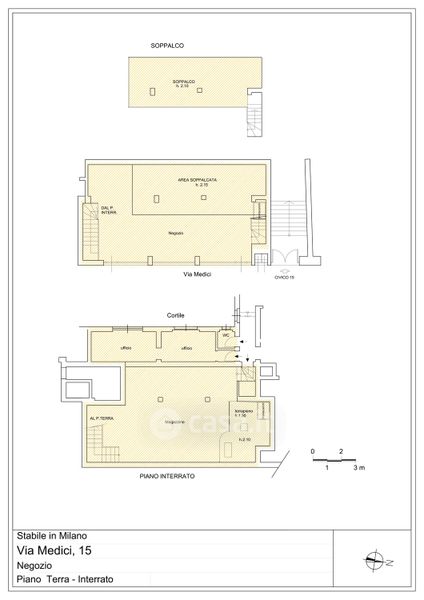
Negozio/Locale commerciale in affitto Via Medici 15, Milano
Salva
Casa.it
1/13
  • Street View
  • Map