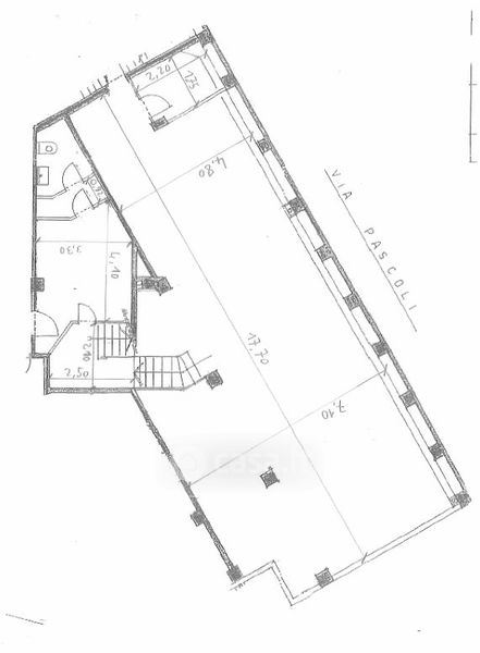
Negozio/Locale commerciale in affitto Via Giovanni Pascoli 3, Milano
Salva
Casa.it
1/36
  • Street View
  • Map