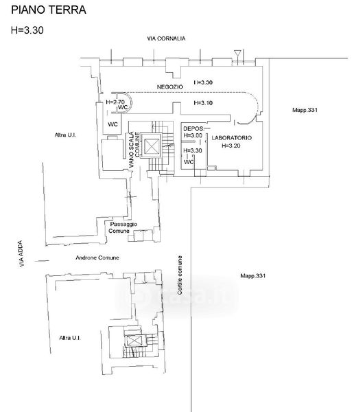
Negozio/Locale commerciale in affitto Via Emilio Cornalia 13, Milano
Salva
Casa.it
1/15
  • Street View
  • Map