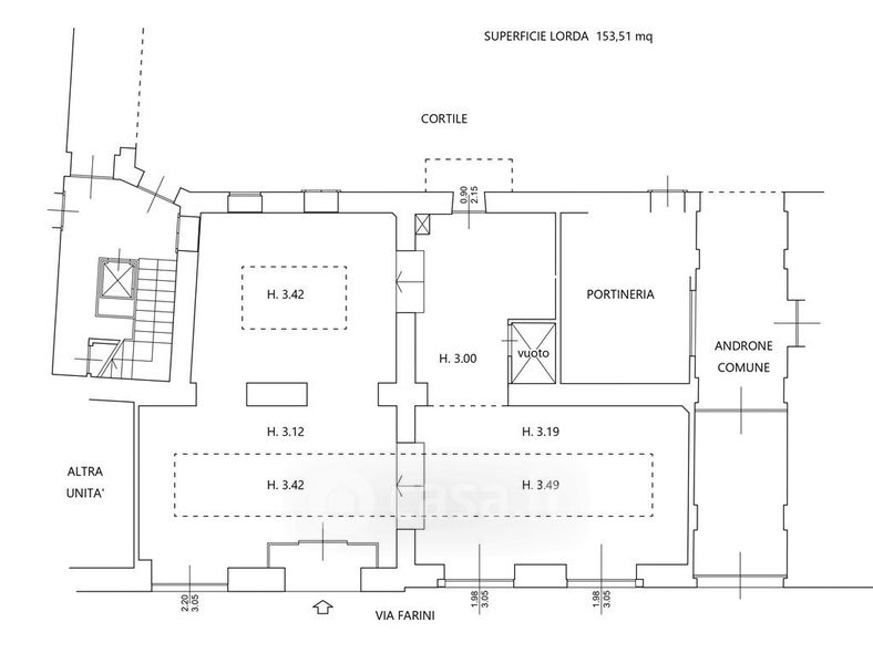
Negozio/Locale commerciale in affitto Via Carlo Farini 72, Milano
Salva
Casa.it
1/14
  • Street View
  • Map